For sale Farm House

Holmes Chapel Road

Sproston, Crewe, CW4 7LP

4 beds 2 baths Listed 20 Nov 2025 (-97d)

£3,300,000

Photo 1 Photo 2 Photo 3 Photo 4 Photo 5 Photo 6 Photo 7 Photo 8 Photo 9 Photo 10 Photo 11 Photo 12 Photo 13

/ 13

Property details

Tenure

FREEHOLD

Council tax band

G

Deprivation

Decile 7 (20,836 of 33,755)

Additional details

Parking
Yes

Description

* We are delighted to bring forward for sale Manor Farm at Sproston near Middlewich in mid Cheshire *The farm is well located close to the M6 motorway, east of Middlewich and is in excellent condition, having been owned and occupied by the same family for around 50 years.
The land extends to 140 acres and is in great condition with good road access stop. Besides the commercial value that the farm offers it also has an amenity attraction as it runs alongside the River Dane. The farmhouse is laid out over 2 floors and has four bedrooms. Only there is a good array of farm buildings, some of which have been converted to a commercial use and are let.

Listed by

Broadheath

A & Mo Thompson Ltd

Reference: 169545338

Flood risk

Zone: 1

Risk: Low

Job (default Low)

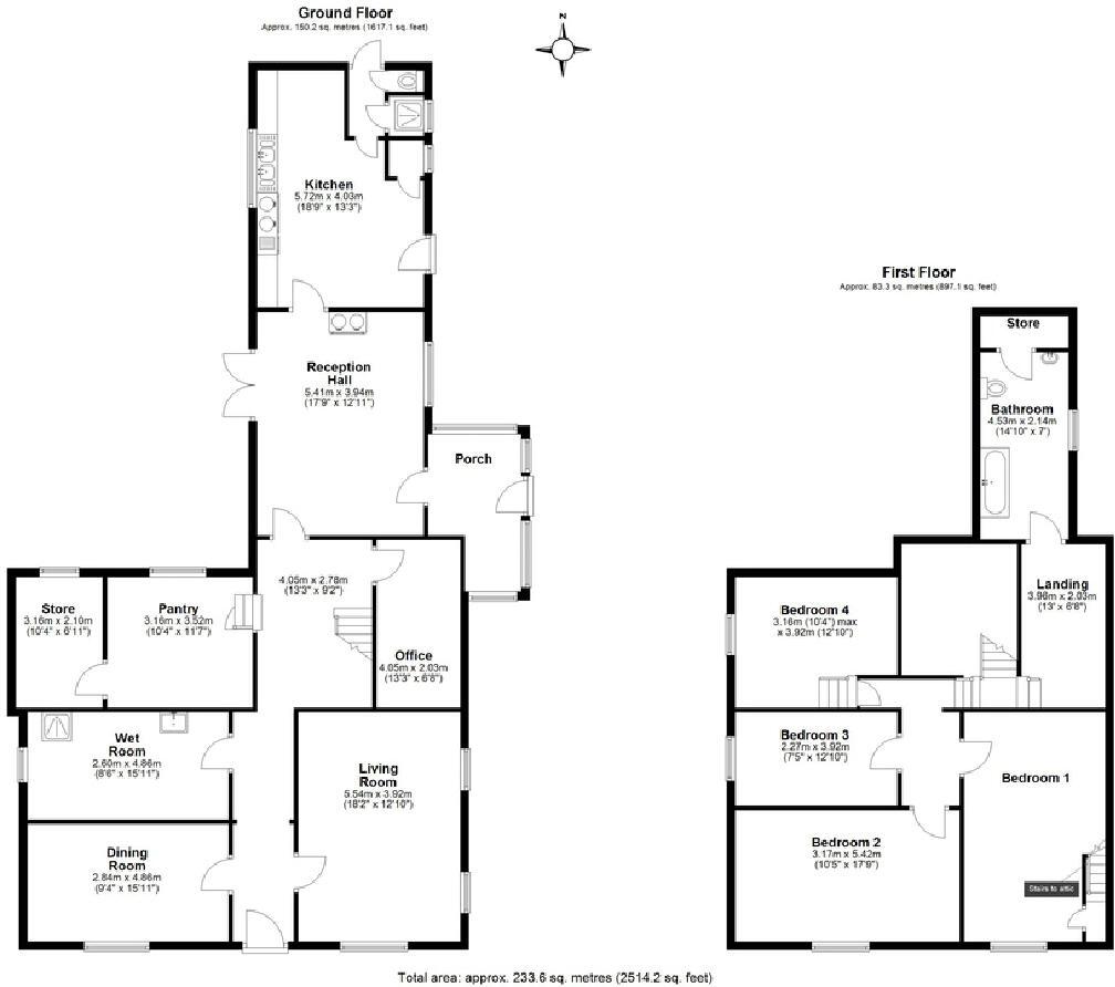
Floorplans

Floorplan 1

Floorplan 1

EPC Graphs

Energy Performance Certificate

Energy Performance Certificate

Price history

Event Date Price % change
Listed for sale £3,300,000

Source: HM Land Registry Price Paid Data. Crown copyright.

Sold Comparables

Sold comparables data is not available for this property.

Rental Range

Estimated market rent for Cheshire West and Chester. Low = conservative, Realistic = average, Optimistic = best case.

Low £859/mo
Realistic £954/mo
Optimistic £1,049/mo

Based on Local Authority from postcode lookup → Cheshire West and Chester.

LHA (30th percentile) floor for South Cheshire: £992/mo (Apr 2025 – Mar 2026)

Location

Address

Holmes Chapel Road

Nearby

Nearest stations, universities and amenities (distance from property).

Type Name Distance
Bus stop Sproston Green, Holmes Chapel Road / Fox & Hounds 0.2 miles
Shop Co-op Food 1.3 miles
Shop Bike Shed 1.5 miles
Train station Holmes Chapel 2.2 miles
Train station Sandbach 3.4 miles
Hospital Weaver Lodge Independent Hospital 3.9 miles
Hospital The NeuroMuscular Centre 6.2 miles
University University of Buckingham Crewe Campus 7.4 miles

Street-level crime

No incidents reported for this period. Data for this month may not be available yet from the source.

Within 1 mile during Jan 2026. Source: data.police.uk (England & Wales).

Schools nearby

Nearest open schools with Ofsted ratings (England). Closed schools are not shown. Data from Get Information about Schools and Ofsted.

Name Type Distance Ofsted
Byley Primary School and Nursery Primary 1.5 miles Good — 12 Mar 2023
Holmes Chapel Comprehensive School Secondary 1.5 miles Good — 10 Mar 2020
Compass Community Cledford Park Other 1.6 miles Good — 15 Jun 2023
Holmes Chapel Primary School Primary 1.8 miles Outstanding — 17 Jul 2015
Middlewich High School Secondary 1.9 miles Good — 5 Feb 2023

Rental Comparables

Rental comparables data is not available for this property.

Enter House Number

Enter the house number to help us retrieve more accurate pricing history and property data.

Scroll to the bottom for “Other” if your address isn’t in the list.

How confident are you?

1 = Just a guess … 10 = Absolutely certain.